今すぐ無料の会員登録で
閲覧可能物件数が
+367
営業時間9:30~20:00 定休日 水曜日
建物
物件画像
周辺環境
QRコードをスキャンして携帯でもご覧になれます。

【リフォーム済】レクセルガーデン武蔵砂川 6階角部屋

本店
岡澤 誠
お問い合わせ先: 0800-100-1755

おすすめコメント

リフォーム物件できれいなお部屋/ペット可

・キッチン、浴室、トイレ、洗面化粧台交換
・フローリング、フロアタイル、クロスなどの内装リフォーム
・照明器具、建具、スイッチコンセント、給湯器交換
・ひろびろルーフバルコニー
・浴室乾燥機・キッチン水栓一体型浄水器

詳細はお気軽にお問い合わせください!

レクセルガーデン武蔵砂川

中古マンション
2,499万円
  • 共益費・管理費:
    9,600円
  • 修繕積立金(月額):
    14,760円
月々の返済額:6万円台
東京都立川市一番町5丁目
表示住所までのルート

西武拝島線 武蔵砂川駅 徒歩 17分 駅までのルート

西武拝島線 西武立川駅 徒歩 18分 駅までのルート

NEW現地見学会おすすめ会員限定
間取り
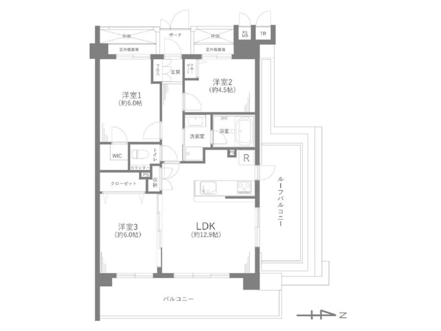
3LDK
所在階
6階
築年月
1999年02月完成
専有面積
65.62㎡(19.85坪)[登記]
今すぐ会員登録する資料請求お気に入りに追加
お問い合わせ先: 0800-100-1755
電話でお問合せする
物件情報
名称
【リフォーム済】レクセルガーデン武蔵砂川 6階角部屋
価格
2,499万円(税込)
共益費・管理費
9,600円
修繕積立金(月額)
14,760円
リフォーム
あり [施工時期] 2025年09月 [箇所] 全室クロス張替 キッチン 浴室 トイレ 洗面 床 給湯器 壁、天井(クロス、塗装等) 建具(室内ドア等) その他 室内クリーニング等
その他費用
ルーフバルコニー:200円(税込) 使用料の月額料金。
所在地
東京都立川市一番町5丁目
交通

西武拝島線 武蔵砂川駅 徒歩 17分

西武拝島線 西武立川駅 徒歩 18分

間取り
3LDK
専有面積
65.62㎡(19.85坪)[登記]
築年月
1999年02月完成
建物構造
鉄筋コンクリート造(RC)
所在階/建物階建
6階 / 9階建
総戸数/販売戸数
123戸
その他面積
バルコニー面積:13.99㎡
ルーフバルコニー面積:10㎡
現況
駐車場
あり 有料 7,000円(税込) 7000~10000円/月 バイク置場:1500~2000円/月
管理
管理形態:全部委託 管理人状況:日勤 管理会社:大京アステージ
施工会社
安藤建設株式会社
設備・条件
駐輪場 日当り良好 24時間換気システム 管理人有り トランクルーム 浴室乾燥機 追い焚き 給湯 浄水器 ルーフバルコニー 2面バルコニー バルコニー バイク置き場 フローリング 宅配ボックス エレベーター オートロック 角部屋 玄関収納 全居室収納 ウォークインクローゼット 温水洗浄便座 シャンプードレッサー カウンターキッチン システムキッチン ガス:都市ガス 汚水:公共下水(使用可) 雑排水:公共下水(使用可) 水道:公営水道(使用可) ペット:可
土地権利
所有権
都市計画
市街化区域/市街化区域
用途地域
第一種中高層住居専用地域/第二種中高層住居専用地域
国土法の届出
不要
引渡時期
即引渡し可
学区

松中小学校 約570m

立川第七中学校 約1390m

物件情報更新日
2025年10月31日(物件情報更新日より14日以内に更新)
物件コード
70868
取引態様
仲介
建物情報
建物現況
完成済
建物名称
レクセルガーデン武蔵砂川
建物面積
-[登記]
今すぐ会員登録する資料請求お気に入りに追加
お問い合わせ先: 0800-100-1755
電話でお問合せする

区画・住戸情報

本店
〒196-0034
東京都昭島市玉川町4丁目9-27 1F
0800-100-1755
営業時間:9:30~20:00 定休日:水曜日
ローンシミュレーション
  • {{error}}
物件価格
2,499万円
借入予定額
万円
頭金
万円
ボーナス(1回分)
万円
返済期間
ローン金利
※ 金利参考先:三井住友信託銀行
金利
%
毎月の支払額
{{repayment_price}} 円

条件がよく似た物件

外観
外観
外観
その他
その他
その他
その他
その他
その他
その他
その他
防犯設備
駐輪場
外観
間取図/区画図
玄関
玄関
リビング
リビング
リビング
寝室
キッチン
キッチン
キッチン
キッチン
キッチン
キッチン
バルコニー
その他
収納
キッチン
防犯設備
洗面室
浴室
浴室
寝室
収納
寝室
バルコニー
外観
外観
その他
その他
その他
その他
その他
その他
その他
その他
防犯設備
駐輪場
間取図/区画図
外観
玄関
玄関
リビング
リビング
リビング
寝室
キッチン
キッチン
キッチン
キッチン
キッチン
キッチン
バルコニー
その他
収納
キッチン
防犯設備
洗面室
浴室
浴室
寝室
収納
寝室
バルコニー
外観
外観
その他
その他
その他
その他
その他
その他
その他
その他
防犯設備
駐輪場
ダイエー武蔵村山(ショッピング施設) 600m
ローソン 一番町四丁目店(コンビニ) 42m