今すぐ無料の会員登録で
閲覧可能物件数が
+342
営業時間9:30~20:00 定休日 水曜日
建物
物件画像
NO IMAGE
周辺環境
QRコードをスキャンして携帯でもご覧になれます。

【リフォーム済】昭島市中神町(北側エリア)中古一戸建て

本店
小峰 亜李紗
お問い合わせ先: 0800-100-1755

おすすめコメント

新規リフォーム物件/4LDK全居室6帖以上/駐車スペース最大2台分(車種による)

【リフォーム内容】
・屋根塗装/外壁洗浄
・室内クロス貼替/エアコンクリーニング/畳表替え/電気スイッチ類交換/クリーニング済
・住宅設備交換(キッチン、ユニットバス、洗面台、トイレ)

詳細お気軽にお問い合わせください!

中古一戸建て
3,480万円
    月々の返済額:8万円台
    東京都昭島市中神町
    表示住所までのルート

    西武拝島線 武蔵砂川駅 徒歩 18分 駅までのルート

    青梅線 中神駅 徒歩 20分 駅までのルート

    NEW現地見学会おすすめ会員限定
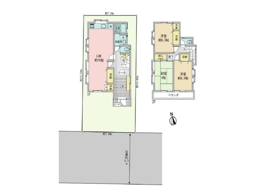
    間取り
    3LDK
    築年月
    1996年03月完成
    土地面積
    100㎡(30.25坪)[公簿]
    建物面積
    89.7㎡(27.13坪)[登記]
    今すぐ会員登録する資料請求お気に入りに追加
    お問い合わせ先: 0800-100-1755
    電話でお問合せする
    物件情報
    名称
    【リフォーム済】昭島市中神町(北側エリア)中古一戸建て
    価格
    3,480万円(税込)
    リフォーム
    あり [施工時期] 2025年09月 [箇所] キッチン 浴室 トイレ 洗面 床 外壁 屋根 壁、天井(クロス、塗装等) その他 室内クリーニング等
    所在地
    東京都昭島市中神町
    交通

    西武拝島線 武蔵砂川駅 徒歩 18分

    青梅線 中神駅 徒歩 20分

    間取り
    3LDK
    建物現況
    完成済
    建物面積
    89.7㎡(27.13坪)[登記]
    土地面積
    100㎡(30.25坪)[公簿]
    地目
    宅地
    土地権利
    所有権
    築年月
    1996年03月完成
    建物構造
    木造(W)
    建物階建
    2階建
    建物向き
    総戸数/販売戸数
    1戸
    駐車場
    あり 2台 敷地内 カースペース 車種による。 詳細お問い合わせください。
    設備・条件
    フローリング トイレ2ヶ所 浴室に窓 全居室収納 階段下収納 玄関収納 ベランダ 南面バルコニー 日当り良好 ガス:個別プロパン 汚水:公共下水(使用可) 雑排水:公共下水(使用可) 水道:公営水道(使用可) 洗濯機置場:室内 トイレ:専用、水洗
    都市計画
    市街化区域
    用途地域
    第一種中高層住居専用地域
    建ぺい率/容積率
    60%/200%
    国土法の届出
    不要
    セットバック
    なし
    私道負担
    なし
    接道状況
    一方 南:幅員6.0m公道
    地域地区
    準防火地域 高度地区
    引渡時期
    相談
    学区

    武蔵野小学校 約700m

    瑞雲中学校 約1700m

    物件情報更新日
    2026年03月09日(物件情報更新日より14日以内に更新)
    物件コード
    71478
    取引態様
    仲介
    今すぐ会員登録する資料請求お気に入りに追加
    お問い合わせ先: 0800-100-1755
    電話でお問合せする
    本店
    〒196-0034
    東京都昭島市玉川町4丁目9-27 1F
    0800-100-1755
    営業時間:9:30~20:00 定休日:水曜日
    ローンシミュレーション
    • {{error}}
    物件価格
    3,480万円
    借入予定額
    万円
    頭金
    万円
    ボーナス(1回分)
    万円
    返済期間
    ローン金利
    ※ 金利参考先:三井住友信託銀行
    金利
    %
    毎月の支払額
    {{repayment_price}} 円

    条件がよく似た物件

    外観
    外観
    間取図/区画図
    その他
    玄関
    リビング
    リビング
    リビング
    キッチン
    キッチン
    キッチン
    キッチン
    洗面室
    浴室
    収納
    トイレ
    その他
    防犯設備
    寝室
    寝室
    寝室
    バルコニー
    トイレ
    その他
    間取図/区画図
    外観
    その他
    玄関
    リビング
    リビング
    リビング
    キッチン
    キッチン
    キッチン
    キッチン
    洗面室
    浴室
    収納
    トイレ
    その他
    防犯設備
    寝室
    寝室
    寝室
    バルコニー
    トイレ
    その他