今すぐ無料の会員登録で
閲覧可能物件数が
+331
営業時間9:30~20:00 定休日 水曜日
建物
物件画像
周辺環境
QRコードをスキャンして携帯でもご覧になれます。

昭島市玉川町3丁目 新築分譲住宅 全1棟

本店
池谷 隆浩
お問い合わせ先: 0800-100-1755

おすすめコメント

「東中神」駅徒歩約8分/マルフジすぐ!
駅チカ・長期優良住宅・太陽光!

イエスタジオすぐ!ご案内はぜひ弊社にお任せください!

新築一戸建て
4,980万円
    月々の返済額:12万円台
    東京都昭島市玉川町3丁目
    表示住所までのルート

    青梅線 東中神駅 徒歩 6分 駅までのルート

    NEW現地見学会おすすめ会員限定

    現地見学会

    開催日
    〜2026年09月27日
    時間
    10:00〜17:30
    受付場所
    -
    備考
    -
    間取り
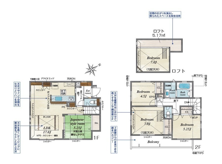
    4LDK
    築年月
    2026年06月予定
    土地面積
    92.09㎡(27.85坪)[実測]
    建物面積
    92.32㎡(27.92坪)[登記]
    今すぐ会員登録する資料請求お気に入りに追加
    お問い合わせ先: 0800-100-1755
    電話でお問合せする
    物件情報
    名称
    昭島市玉川町3丁目 新築分譲住宅 全1棟
    価格
    4,980万円(税込)
    所在地
    東京都昭島市玉川町3丁目
    交通

    青梅線 東中神駅 徒歩 6分

    間取り
    4LDK
    建物現況
    建築中
    建物面積
    92.32㎡(27.92坪)[登記]
    土地面積
    92.09㎡(27.85坪)[実測]
    地目
    宅地
    土地権利
    所有権
    築年月
    2026年06月予定
    建物構造
    木造(W)
    建物階建
    2階建
    建物向き
    南西
    駐車場
    あり 1台 敷地内 カースペース 車種による
    建築確認番号
    R08SHC101963
    設備・条件
    浴室に窓 整形地 BELS/省エネ基準適合認定書あり 耐震 長期優良住宅 設計住宅性能評価付 制震 建設住宅性能評価付 24時間換気システム 複層ガラス バルコニー TVドアホン 玄関収納 床下収納 ロフト 省エネ給湯器 浴室乾燥機 オートバス 浴室1坪以上 追い焚き 温水洗浄便座 トイレ2ヶ所 シャンプードレッサー 食器洗乾燥機 浄水器 カウンターキッチン システムキッチン 太陽光発電システム フローリング ガス:都市ガス コンロ:ガス、三口 汚水:公共下水(使用可) 雑排水:公共下水(使用可) 水道:公営水道(使用可) 洗濯機置場:室内
    都市計画
    市街化区域/市街化区域
    用途地域
    第一種中高層住居専用地域/近隣商業地域
    建ぺい率/容積率
    60%/200%、80%/200%
    国土法の届出
    不要
    セットバック
    なし
    私道負担
    なし
    接道状況
    一方 北東:幅員2.9m公道
    引渡時期
    相談
    学区

    東小学校 約1000m

    昭和中学校 約730m

    物件情報更新日
    2026年03月03日(物件情報更新日より14日以内に更新)
    物件コード
    72531
    取引態様
    仲介
    今すぐ会員登録する資料請求お気に入りに追加
    お問い合わせ先: 0800-100-1755
    電話でお問合せする
    本店
    〒196-0034
    東京都昭島市玉川町4丁目9-27 1F
    0800-100-1755
    営業時間:9:30~20:00 定休日:水曜日
    ローンシミュレーション
    • {{error}}
    物件価格
    4,980万円
    借入予定額
    万円
    頭金
    万円
    ボーナス(1回分)
    万円
    返済期間
    ローン金利
    ※ 金利参考先:三井住友信託銀行
    金利
    %
    毎月の支払額
    {{repayment_price}} 円

    条件がよく似た物件

    外観
    外観
    外観
    外観
    間取図/区画図
    間取図/区画図
    外観
    外観
    間取図/区画図
    外観
    間取図/区画図
    外観
    外観
    マルフジ東中神店(スーパー) 50m
    昭島市立東小学校(小学校) 1000m
    昭島市立昭和中学校(中学校) 730m